A Modern, Low Impact Building

The site we have chosen is off Hooton Road, next to the Oaklands Business Park.   It is within the Green Belt, and we are acutely conscious that what we build has to be attractive, be of high quality and minimise any impact on the open countryside.

Consequently, we propose a modest structure which will be no higher than a typical house and will be set in a low part on the site.    It will be clad in larch and have a green (sedum) roof to minimise its impact when viewed from the east or from Hooton Road.

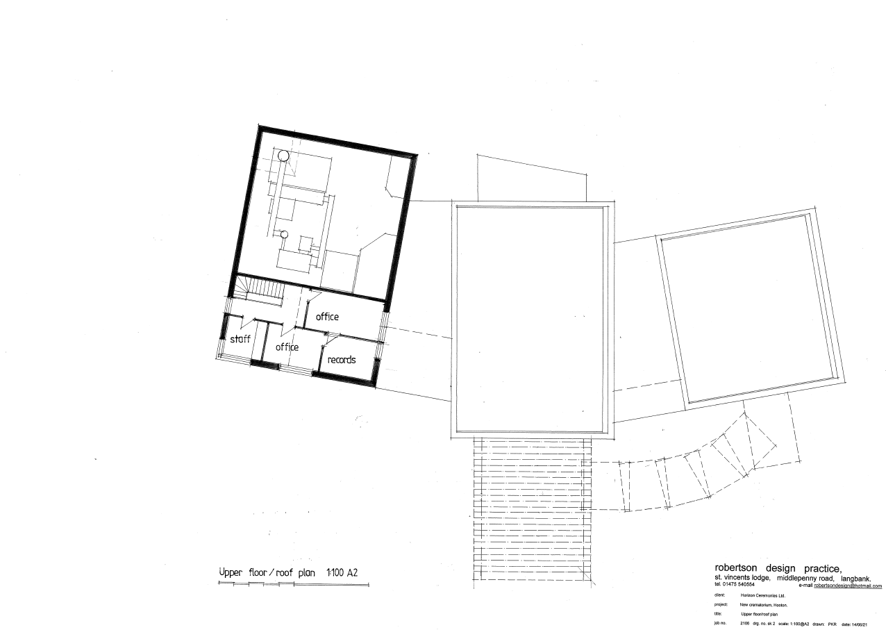
The building will be attractive with sleek lines and glazing to flood the ceremony hall and waiting room with light.   There would be three elements to the building.   Visitors will leave the car park and enter a large waiting room with comfortable chairs, toilets and tea and coffee facilities.   The ceremony hall itself will have 120 seats and a large picture window in front of which will sit the coffin.  We will have a high-quality music system and the latest audio-visual equipment for film or photographic tributes.   The third wing of the building will be our offices and the cremator room.

We will provide 100 car parking spaces which will be tucked away behind the existing hedgerows and new planting of native species.

The building will sit within both a formal memorial garden and informal managed grassland and woods.

Our Other Crematoria

Clyde Coast & Garnock Valley

Crematorium

Cannock Chase

Crematorium

Find out more about us or get in touch

Find out more about Horizon Cremation

Contact us to find out more about our new crematorium proposal for Cheshire West.